Capannone e uffici Zona Industriale Pace del Mela (ME)

Pace Del Mela (Messina)

Rif: IMMO-123454325
Condividi Linkedin Whatsapp Stampa
€ 4.800
Affitto
Capannone industriale
996 Mq
1 vano
Classe energetica Non indicata
Proponiamo in affitto fabbricato destinato ad attività industriali, locale magazzino/deposito sito nella Zona Industriale a Pace del Mela, con annessi uffici di 80 mq e piazzale esterno di 1.160 mq.

Il capannone è sito in un area interna esclusiva recintata, con doppio accesso di cui uno con doppio cancello elettrico fronte strada, ingresso adatto per mezzi pesanti.
Dotato di ripostiglio, antibagno e bagno. L'altezza di 7 mt e le porte d'ingresso alte 5,50 mt con un sistema di ribaltamento a 180 gradi, rendono il capannone ideale per magazzini e logistica, attività industriali che richiedono spazio per lo stoccaggio verticale, movimentazione di merci voluminose e un facile accesso per mezzi pesanti, come carrelli elevatori e camion.
Luminoso e con ottimo impianto di illuminazione interna. Uscite sicurezza. Fognatura acque bianche. Totalmente ristrutturato.
L'edificio, inserito in ottimo contesto commerciale, vanta un'ampia area libera a parcheggio o deposito all'aperto.
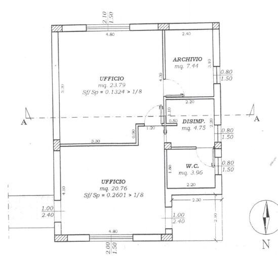
Adiacente al capannone, gli uffici di circa 70 mq dove l'attività amministrativa e gestionale viene svolta in un ambiente distinto. Questa struttura, totalmente ristrutturata, non arredata, climatizzata e dotata in ogni ambiente di tapparelle automatizzate, è composto da 2 vani ufficio, un ambiente archivio, disimpegno e n. 2 bagni.
Completa l'operazione, l'ampio piazzale di 1.160,00 mq con pavimento industriale.

Canone di 4.800,00 Eu./mese oltre Iva di legge, con fideiussione bancaria.

Dettaglio immobile

Contratto Affitto
Rif IMMO-123454325
Prezzo € 4.800
Provincia Messina
Comune Pace Del Mela
Indirizzo Via Industriale
Superficie 996 mq
Vani 1
Classe energetica Non indicata
Riscaldamento inesistente
Condizioni ottime condizioni
Ascensore no

Consistenze

Descrizione Superficie Sup. comm.
Principali
Capannone - piano terra 800 Mq 800 Mqc
Ufficio - piano terra 80 Mq 80 Mqc
Esterno - piano terra 1.160 Mq 116 Mqc
Totale 996 Mqc

Planimetrie

Richiedi maggiori informazioni

Autorizzazione al trattamento dei dati personali+
Dichiaro di aver letto l'informativa sulla privacy ed accetto le condizioni d'utilizzo del servizio.
Riempi il campo con il codice riportato nell'immagine*
Codice Captcha
Chiamaci Contattaci