Appartamenti ristrutturati fronte mare+parcheggio Milazzo ME

Milazzo (Messina)

Rif: IMMO-124051175
Condividi Linkedin Whatsapp Stampa
€ 240.000
Appartamento
80 Mq
3 Vani
Classe energetica Non indicata
2 Camere
1 bagno
Ascensore
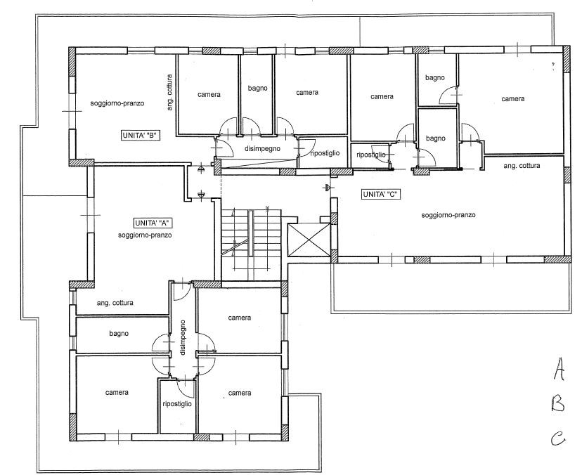
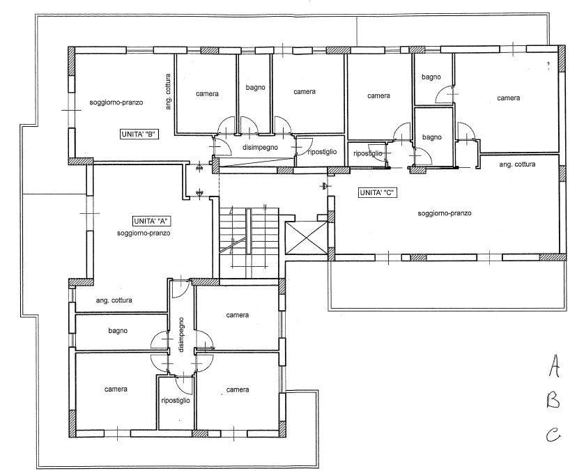
Fronte mare in Via Spiaggia di Ponente, si propone la vendita di appartamenti di varie metrature e soluzioni interne, totalmente ristrutturati, così composti.
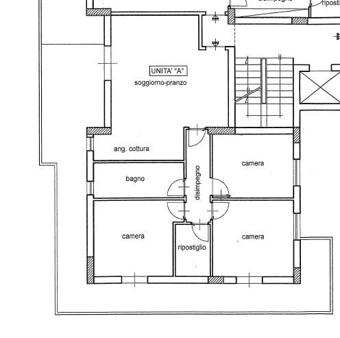
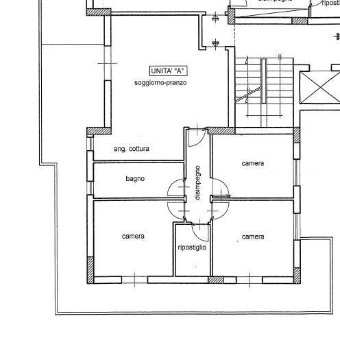
soluzione A di 110 mq: cucina soggiorno, n. 3 camere da letto, bagno, disimpegno e ripostiglio, esposizione angolare. Impianto di riscaldamento e condizionamento.
soluzione B di 80 mq: cucina soggiorno, n. 2 camere da letto, bagno, disimpegno e ripostiglio, esposizione angolare. Impianto di riscaldamento e condizionamento.
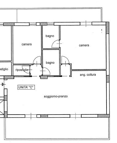
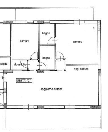
soluzione C di 110 mq: doppio soggiorno con cucina, n. 2 camere da letto, n. 2 bagni, disimpegno e ripostiglio, doppia esposizione. Impianto di riscaldamento, condizionamento, predisposizione impianto di allarme e Dolby Surround. Veranda, con con allaccio lavatrice, asciugatrice, caldaia oltre predisposizione boiler elettrico.
Appartamenti luminosi arieggiati grazie alla posizione, tutti gli ambienti con affacci balconati. Posto auto di proprietà. Ottime le condizioni del condominio.
Per gli amanti del mare, per chi è alla ricerca di un immobile pronto da vivere, con le comodità che la suddivisione degli spazi interni offre.
Ottimo investimento per viverci o da mettere a reddito.
Contatta DACA IMMOBILIARE per trovare insieme la soluzione più adatta alle tue esigenze.

Dettaglio immobile

Contratto Vendita
Rif IMMO-124051175
Prezzo € 240.000
Provincia Messina
Comune Milazzo
Indirizzo Via Spiaggia di Ponente 41
Superficie 80 mq
Vani 3
Camere 2
Bagni 1
Classe energetica Non indicata
Piano 3 / 3
Riscaldamento autonomo
Condizioni ottime condizioni
Anno di costruzione 2006
Ascensore si
Parcheggio si
Cucina abitabile
Balcone si

Consistenze

Descrizione Superficie Sup. comm.
Principali
Immobile - 3° piano 80 Mq 80 Mqc
Totale 80 Mqc

Planimetrie

Richiedi maggiori informazioni

Autorizzazione al trattamento dei dati personali+
Dichiaro di aver letto l'informativa sulla privacy ed accetto le condizioni d'utilizzo del servizio.
Riempi il campo con il codice riportato nell'immagine*
Codice Captcha
Chiamaci Contattaci